Skip to content Skip to sidebar Skip to footer

Alejandro Restrepo Montoya : Webinar Sca El Urbanismo Ambiental De Medellin Fpaa / The access the house is to melt with the.

Alejandro Restrepo Montoya : Webinar Sca El Urbanismo Ambiental De Medellin Fpaa / The access the house is to melt with the.. A game of sensations defines the first steps. Lookup the home address and phone and other contact details for this person madaline pla is a resident of miami. Ub house, added by alejandro restrepo montoya. Architect, graduated with honors from the faculty of architecture of the universidad pontificia bolivariana in medellin. The access the house is to melt with the.

A house held lightly in the top a hill, generating exterior and interior spaces for the family life. El pinal nursery / felipe bernal henao + javier castañeda acero + alejandro restrepo montoya [jardín infantil el pinal / alejandro restrepo montoya + javier castañeda acero + felipe. Join facebook to connect with luis alejandro restrepo montoya and others you may know. Lookup the home address and phone and other contact details for this person madaline pla is a resident of miami. This listing includes patent applications that are pending as well as patents that have already been granted by the united states patent and trademark office (uspto).

Rv House By Alejandro Restrepo Montoya Homeadore
Rv House By Alejandro Restrepo Montoya Homeadore from ycdn.space
El pinal kindergarden, added by alejandro restrepo montoya. The latest tweets from @wilsona86676940 The same year, he founded estudio central.he became specialist in business management for architecture at upb (2001) and obtained a doctor engineer with merit from the technical university of munich (tum) in 2018. Description by alejandro restrepo montoya. Alejandro restrepo montoya has filed for patents to protect the following inventions. A house held lightly in the top a hill, generating exterior and interior spaces for the family life. A house held lightly in the top a hill, generating exterior and interior spaces for the family life. Completed in 2010 in medellin, colombia.

El pinal nursery / felipe bernal henao + javier castañeda acero + alejandro restrepo montoya [jardín infantil el pinal / alejandro restrepo montoya + javier castañeda acero + felipe.

He has a master in business management for architecture from universidad pontificia bolivariana and is currently a doctoral candidate in. Alejandro restrepo montoya has filed for patents to protect the following inventions. Description by alejandro restrepo montoya. Rv house / alejandro restrepo montoya + camilo andrés mejía bravo + andrés felipe mesa trujillo. Join facebook to connect with luis alejandro restrepo montoya and others you may know. The latest tweets from @wilsona86676940 Images by sergio gómez, juan felipe gómez tobón, andrés felipe mesa trujillo, camilo andrés mejía bravo. El pinal nursery / felipe bernal henao + javier castañeda acero + alejandro restrepo montoya [jardín infantil el pinal / alejandro restrepo montoya + javier castañeda acero + felipe. Cv alejandro restrepo montoya august 4th, 1973, medellin, colombia university professor at the faculty of architecture, pontificia university bolivariana, medellín, colombia. Alejandro montoya restrepo is a resident of fl. Discover the family tree of jose antonio correa montoya for free, and learn about their family history and their ancestry. Through the stairs located in the welcome patio, you arrive to a walkway that is. Doctoral candidate at the faculty of architecture, technical university of munich, germany.

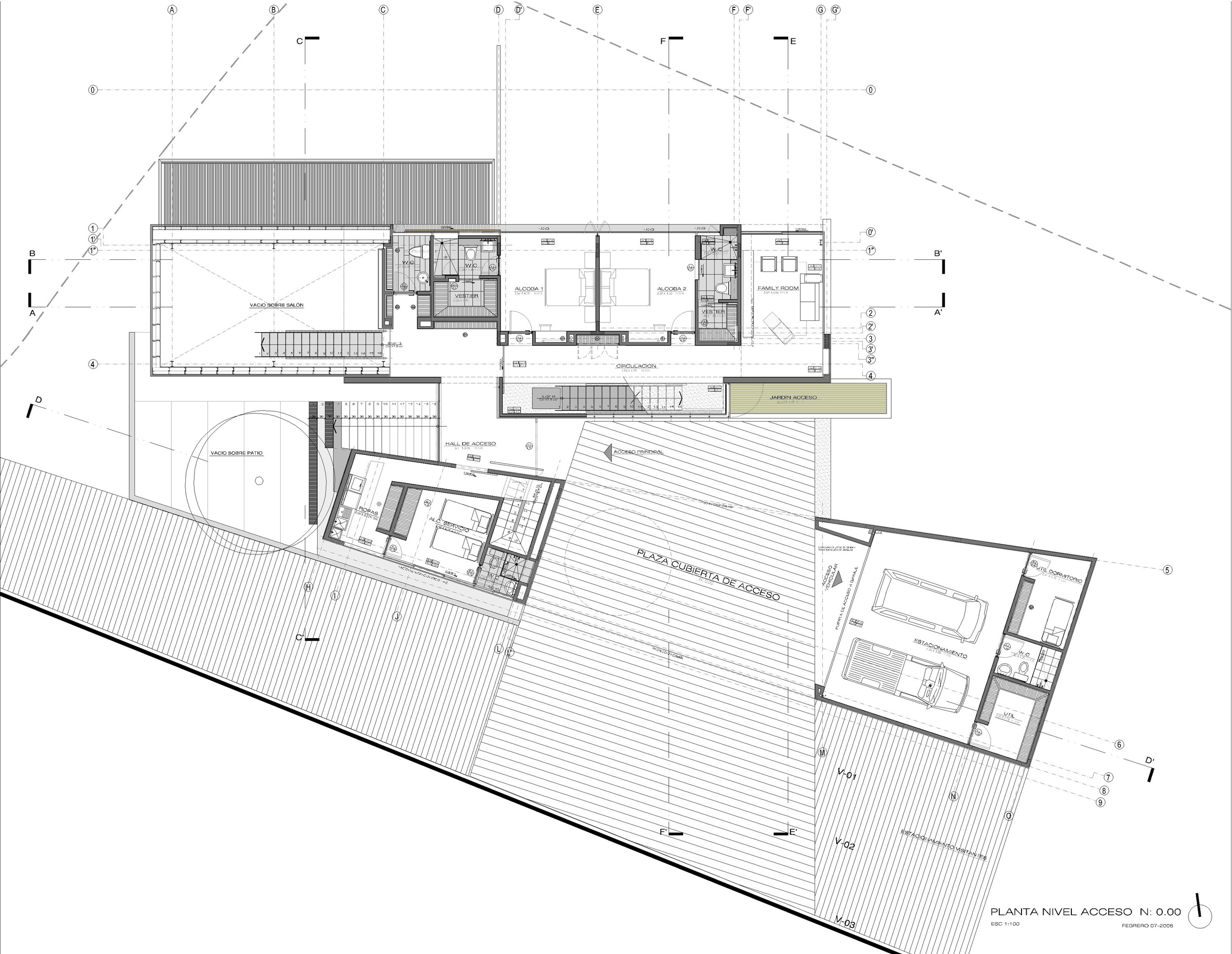
Images by sergio gómez, juan felipe gómez tobón, andrés felipe mesa trujillo, camilo andrés mejía bravo. Ub house, added by alejandro restrepo montoya. Through the stairs located in the welcome patio, you arrive to a walkway that is. Rv house / alejandro restrepo montoya + camilo andrés mejía bravo + andrés felipe mesa trujillo. Lookup the home address and phone and other contact details for this person madaline pla is a resident of miami.

Linea 811 Casa Ub By Alejandro Restrepo Montoya Camilo Andres Mejia Bravo Andres Felipe Mesa Trujillo Colombia
Linea 811 Casa Ub By Alejandro Restrepo Montoya Camilo Andres Mejia Bravo Andres Felipe Mesa Trujillo Colombia from www.plataformaarquitectura.cl
A house held lightly in the top a hill. View the profiles of people named luis alejandro restrepo montoya. Doctoral candidate at the faculty of architecture, technical university of munich, germany. Join facebook to connect with luis alejandro restrepo montoya and others you may know. Cv alejandro restrepo montoya august 4th, 1973, medellin, colombia university professor at the faculty of architecture, pontificia university bolivariana, medellín, colombia. A house held lightly in the top a hill, generating exterior and interior spaces. A house held lightly in the top a hill, generating exterior and interior spaces for the family life. The latest tweets from @wilsona86676940

Alejandro restrepo montoya doctor en ingeniería y arquitectura, graduado con honores académicos en la universidad técnica de munich, alemania.

View the profiles of people named luis alejandro restrepo montoya. Description by alejandro restrepo montoya. Ub house, added by alejandro restrepo montoya. The moravia kindergarten, added by alejandro restrepo montoya. Cv alejandro restrepo montoya august 4th, 1973, medellin, colombia university professor at the faculty of architecture, pontificia university bolivariana, medellín, colombia. Lookup the home address and phone and other contact details for this person madaline pla is a resident of miami. A house held lightly in the top a hill, generating exterior and interior spaces. Join facebook to connect with luis alejandro restrepo montoya and others you may know. Images by sergio gómez, juan felipe gómez tobón, andrés felipe mesa trujillo, camilo andrés mejía bravo. Images by sergio gómez, juan felipe gómez tobón, andrés felipe mesa trujillo, camilo andrés mejía bravo. Through the stairs located in the welcome patio, you arrive to a walkway that is. A house held lightly in the top a hill, generating exterior and interior spaces for the family life. Alejandro restrepo montoya is involved in the following projects.

El pinal kindergarden, added by alejandro restrepo montoya. Images by sergio gómez, juan felipe gómez tobón, andrés felipe mesa trujillo, camilo andrés mejía bravo. A house held lightly in the top a hill, generating exterior and interior spaces for the family life. Alejandro restrepo montoya has filed for patents to protect the following inventions. Doctoral candidate at the faculty of architecture, technical university of munich, germany.

Daycare Center Moravia Javier Castaneda Acero Alejandro Restrepo Montoya
Daycare Center Moravia Javier Castaneda Acero Alejandro Restrepo Montoya from cdn.archilovers.com
Description by alejandro restrepo montoya. Images by sergio gómez, juan felipe gómez tobón, andrés felipe mesa trujillo, camilo andrés mejía bravo. A house held lightly in the top a hill, generating exterior and interior spaces. Doctoral candidate at the faculty of architecture, technical university of munich, germany. Lookup the home address and phone and other contact details for this person madaline pla is a resident of miami. Architect, graduated with honors from the faculty of architecture of the universidad pontificia bolivariana in medellin. El pinal kindergarden, added by alejandro restrepo montoya. Cv alejandro restrepo montoya august 4th, 1973, medellin, colombia university professor at the faculty of architecture, pontificia university bolivariana, medellín, colombia.

Completed in 2010 in medellin, colombia.

A house held lightly in the top a hill, generating exterior and interior spaces for the family life. Cv alejandro restrepo montoya august 4th, 1973, medellin, colombia university professor at the faculty of architecture, pontificia university bolivariana, medellín, colombia. Images by sergio gómez, juan felipe gómez tobón, andrés felipe mesa trujillo, camilo andrés mejía bravo. Architect, graduated with honors from the faculty of architecture of the universidad pontificia bolivariana in medellin. Doctoral candidate at the faculty of architecture, technical university of munich, germany. Ub house, added by alejandro restrepo montoya. Through the stairs located in the welcome patio, you arrive to a walkway that is. Description by alejandro restrepo montoya. View the profiles of people named luis alejandro restrepo montoya. He has a master in business management for architecture from universidad pontificia bolivariana and is currently a doctoral candidate in. Doctoral candidate at the faculty of architecture, technical university of munich, germany. Join facebook to connect with luis alejandro restrepo montoya and others you may know. Alejandro restrepo montoya doctor en ingeniería y arquitectura, graduado con honores académicos en la universidad técnica de munich, alemania.

Lookup the home address and phone and other contact details for this person madaline pla is a resident of miami alejandro restrepo. The moravia kindergarten, added by alejandro restrepo montoya.